FIND YOUR PERFECT HOME
Welcome All Home Buyers & Home Sellers in Calgary and across Alberta
$639,000
12 Cougar Ridge Landing Sw
Calgary, Alberta
T3H 0X8
MLS® Number: A2263362
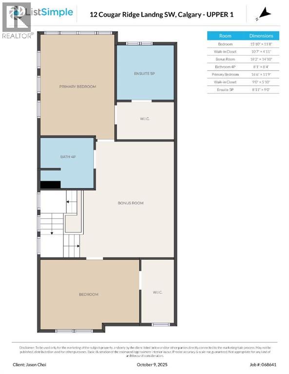
Row / Townhouse- 1845 Sq Ft Square Feet
- 3
Bedrooms - 4
Bathrooms


















































Property Details
Welcome to a truly exceptional opportunity in the desirable community of Cougar Ridge. This well-located complex, situated near Old Banff Coach Road, features this unique end unit within a highly sought-after 4-plex building. This townhome offers an expansive 2,365+ square feet of meticulously maintained living space, complete with 3 bedrooms and 3.5 bathrooms. The main level showcases elegant hardwood flooring throughout the living and dining areas. The kitchen and all baths have been upgraded with stylish granite countertops. The home boasts brand new, high-end Samsung and LG appliances (refrigerator, microwave, electric stove, and dishwasher). The upper floor features two spacious bedrooms with freshly replaced carpeting, plus a versatile hardwood-floored loft area. The basement is fully and professionally developed, adding significant value and living space with a large family room, a third bedroom, and a 4-piece bathroom. Ample storage space is also available. Enjoy the convenience of an attached single-car garage and an additional dedicated parking stall right in front of the unit. Its excellent location provides easy access to downtown and public transit, making it ideal for the commuter. (id:6365)
Mortgage Calculators Virtual Tour
- Listing ID: A2263362
- Property Type: Single Family
- List Price: $639,000
- 1845 Sq Ft
- Year Built: 2013
Listing By: First Place Realty
Leave A Message (all fields required)
Make Your Move in Calgary
Expert guidance and exclusive listings to help you buy or sell your home with confidence.
Schedule a No-Obligation CallOur team will help you buy or sell your Calgary area home. No hassles, no gimmicks. Just results.